The Sanderson
The Sanderson
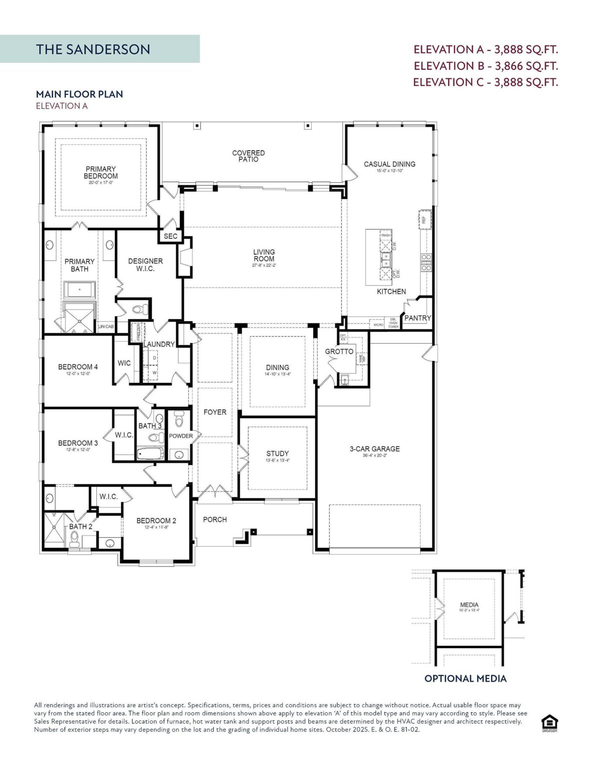
The Sanderson floorplan offers a thoughtful and spacious single-story design with 3,888 sq. ft. of functional elegance. At the heart of the home is a wide open-concept living area that flows seamlessly into the kitchen and casual dining space, ideal for both everyday living and entertaining. The kitchen is equipped with a 36" 6-burner cooktop, double ovens with air fryer and sous vide, as well as a quartz-topped island perfect for gatherings. The primary suite is privately tucked in the back corner with direct patio access, a spa-like bath featuring a freestanding tub and frameless glass shower, and a custom walk-in closet. Three secondary bedrooms are strategically placed—two near the front with a shared bath and one in its own wing with a full bath nearby—ideal for guests or multi-generational living. A formal dining room, private study, and a versatile game or media room provide both quiet retreats and entertainment spaces. Outdoors, a Texas-sized covered patio with sliding glass doors invites easy indoor-outdoor living, and the home’s tankless water heater and LED lighting add everyday efficiency. Every room is placed with purpose, creating a smooth, intuitive flow that supports a variety of lifestyles.

Join the interest list
Learn more about floor plans, elevations, design features, pricing, and special incentives.
- Sunday – Monday: 12 PM – 6 PM
- Tuesday – Saturday: 10 AM – 6 PM
Available Only for a Limited Time
Say ‘Welcome Home’ With $0 Move-In Costs or Other Incentives Valued Up to $50K
Choose from a curated list of financial perks valued at up to $50,000—including $0 move-in costs—available on select Quick Delivery Homes. This limited-time offer lets you pick the financial perk that fits you best—so you can close with confidence.*
*All incentives are subject to conditions. Please contact our team for more details.
floor plan
Our floor plans are designed with your lifestyle in mind, featuring functional spaces, modern layouts, and the flexibility to suit your needs. Explore the details of this home and find the perfect configuration for your family and everyday living.
exterior options
mortgage calculator
Shopping for a new home, but unsure what you can afford? Use our mortgage calculator below to see your options.
