Now Selling
The Minstrel
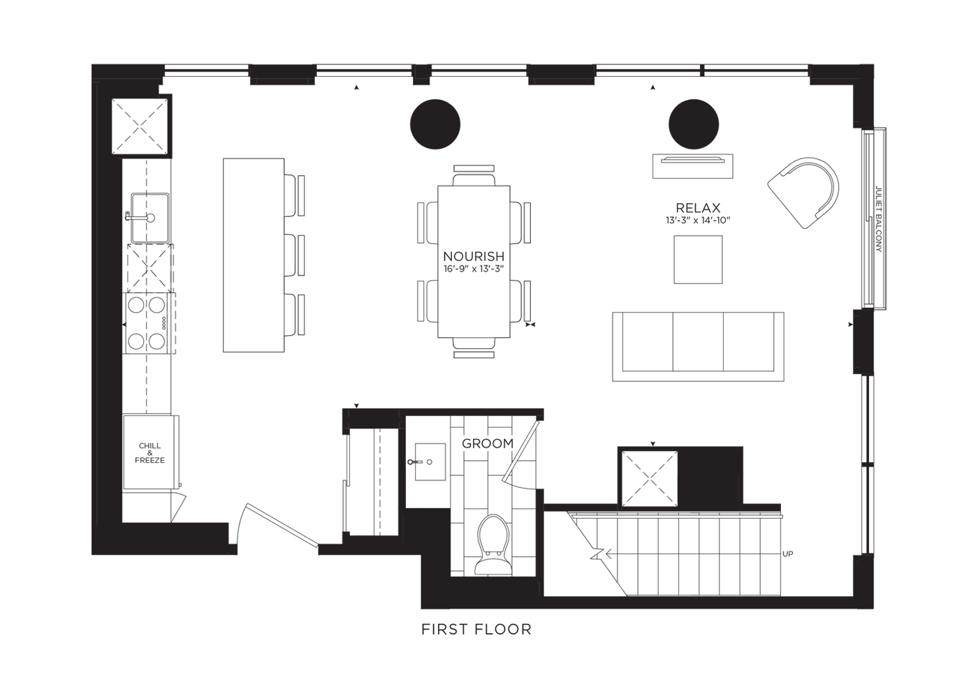
PH04
Beds
2
Baths
2
½ Baths
1
Sq. Ft.
1,399
price
Call us for pricing
Move-in Ready
The Minstrel
PH04
price:
Call us for pricing
price:
Call us for pricing
1,399 SQ. FT.
2 beds
2 baths
1 half baths

Have a question? Our New Home Specialists are here to help.
Visit Us
Schedule an appointment at our sales centre to tour a model home, explore the neighbourhood, or chat with our team.
Please note: visits are by appointment only.
Please note: visits are by appointment only.
(416) 704-0206
325 King St W, Toronto, ON M5A 1L1
Maverick
mortgage calculator
Shopping for a new home, but unsure what you can afford? Use our mortgage calculator below to see your options.